ANT NIERUCHOMOŚCI
Dom w zabudowie bliźniaczej gm. Piaseczno
Dom w zabudowie bliźniaczej gm. Piaseczno
Na sprzedaż nowy dom w zabudowie bliźniaczej o powierzchni 160 m², położony na działce 500 m², przy ul. Jastrzębiej w Głoskowie (gm. Piaseczno). Nieruchomość z rynku pierwotnego, w stanie deweloperskim, z planowanym oddaniem w marcu 2026 roku.
Budynek wyposażony w nowoczesne instalacje oraz ogrzewanie pompą ciepła. Działka ogrodzona, płaska, z dojazdem drogą utwardzoną.
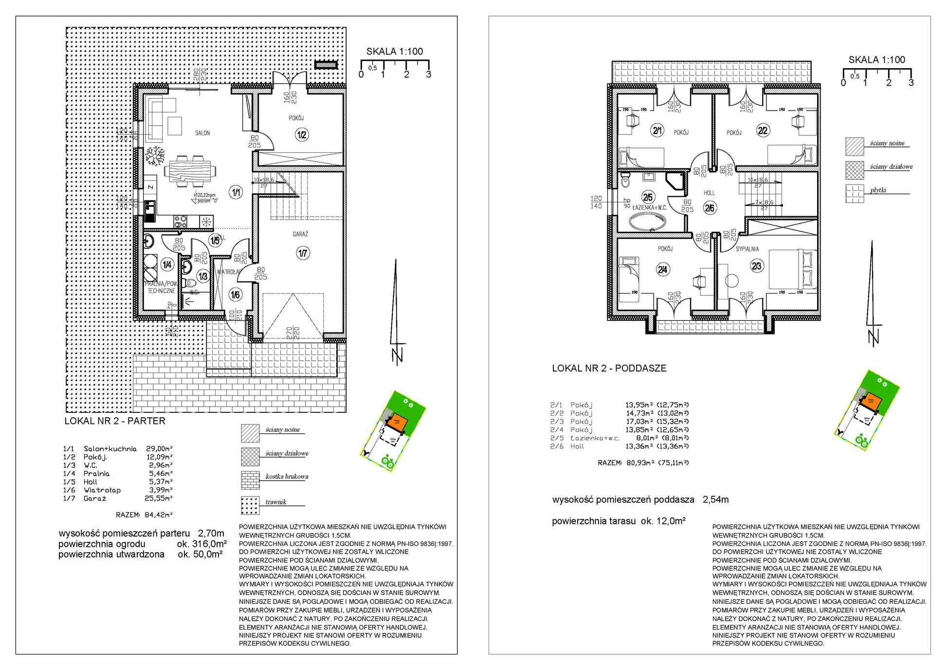
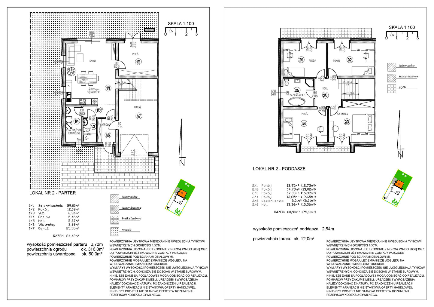
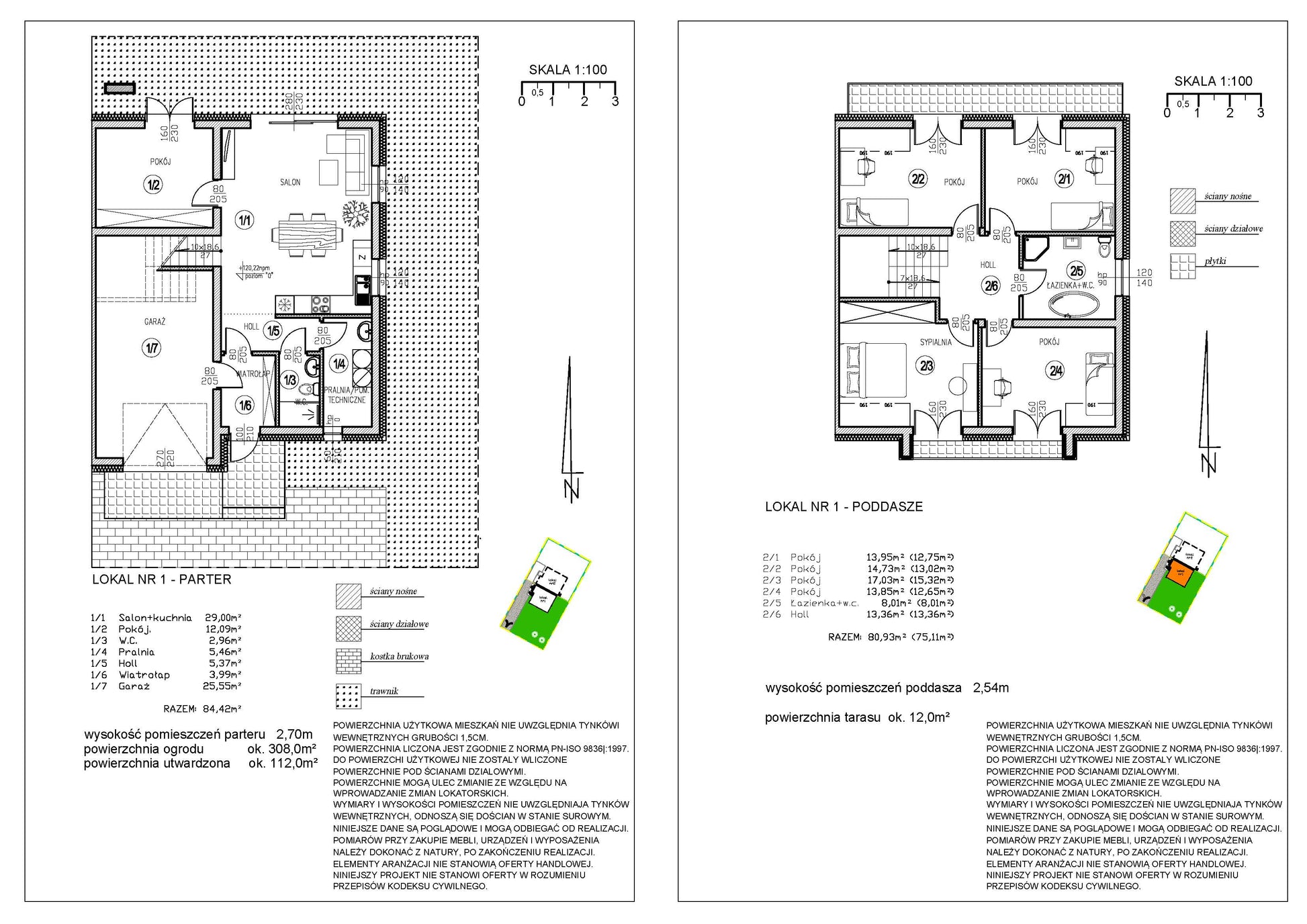
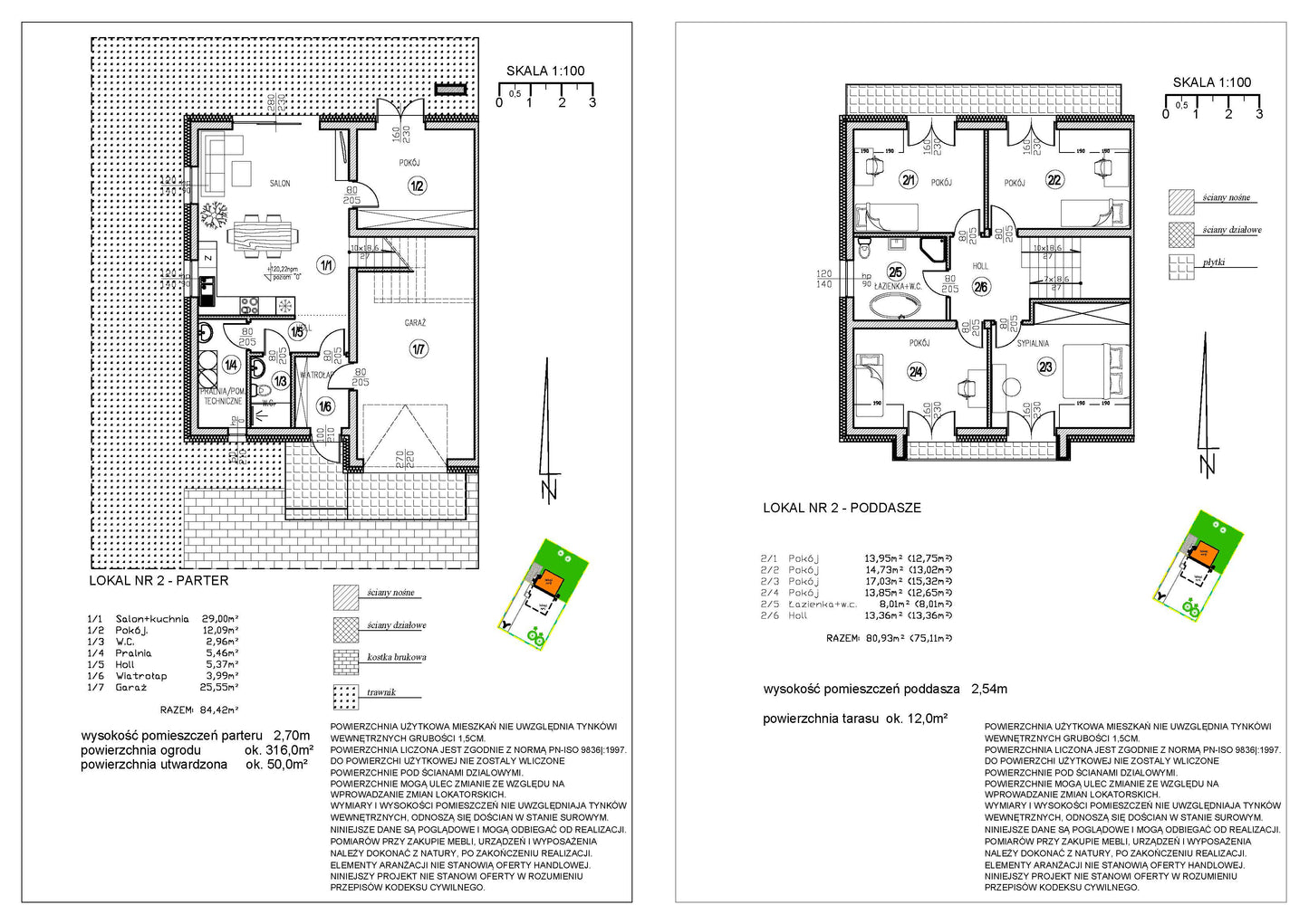
Układ pomieszczeń:
Parter:
– salon z aneksem kuchennym
– dodatkowy pokój (gabinet / pokój gościnny)
– łazienka
– pralnia
– garaż w bryle budynku
Piętro:
– 4 sypialnie
– przestronna łazienka
Dom oferuje funkcjonalny i wygodny układ, odpowiedni dla rodziny. Duże przeszklenia zapewniają dobre doświetlenie wnętrz. Stan deweloperski daje możliwość aranżacji według własnych potrzeb.
Nieruchomość położona jest w spokojnej i zielonej części Głoskowa, w otoczeniu nowej zabudowy jednorodzinnej oraz terenów leśnych. W niedalekiej odległości znajdują się sklepy, szkoły, przedszkola oraz punkty usługowe. Szybki dojazd do Piaseczna oraz do centrum Warszawy (ok. 35–40 minut).
Zapraszam do kontaktu oraz umówienia się na prezentację nieruchomości.
+48 667 031 737
biuro@antnieruchomosci.pl
Share
